Falta de altura vertical
Este artículo es de un libro de 1986, época en que sólo había televisores analógicos con cinescopios. Así, los siguientes procedimientos de datos sólo son válidos para este tipo de aparato. Son importantes si el lector pretende recuperar un viejo televisor de este tipo, para usarlo con viejas videocintas o cámaras de la época. Como muestra la figura 1, la imagen queda "estrecha", es decir, se forma una pista en la pantalla del televisor donde la imagen se concentra sobrepuesta (doblada)

En este caso también el problema debe ser causado por deficiencia en la salida vertical alrededor de T404 y T405. Las tensiones en estos transistores, según muestra el diagrama de la figura 9 deben ser medidas, con especial atención a la intensidad de la señal que excita sus bases.
Los cambios de ganancia debido a sobrecalentamiento, fugas en condensadores o resistores alterados pueden "matar" la señal impidiéndole tener la intensidad suficiente para una deflexión total.
La intensidad de la señal en el integrado también es importante, ya que puede ser causa del problema. Tensiones anormalmente bajas en el paso indican problemas con la fuente que también debe ser verificada. Vea también las tensiones en los pines 3 y 4 del integrado que deben estar de acuerdo con lo indicado en el diagrama.
Finalmente, si el lector tiene un osciloscopio debe analizar la forma de onda en el punto 9 que debe tener una amplitud de 27 Vpp. El + B de esta etapa, como se indica en el diagrama debe ser de 28 V.
Falta de imagen
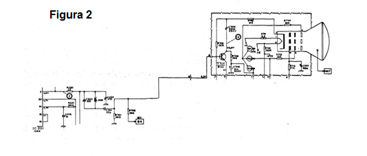
La falta de imagen en un televisor, es decir, la pantalla totalmente oscura nos lleva a sospechar problemas en el paso de salida de vídeo. En la figura 2 tenemos el circuito típico de esta etapa en el televisor TV936 de Philco que sirve de ejemplo para nuestro análisis.

Compruebe en primer lugar el estado del transistor T701, midiendo la tensión en su colector que debe ser de 85 V aproximadamente y en su emisor de 5V. En la base la tensión debe ser del orden de 5,3 volts.
Compruebe después la presencia de la señal de vídeo en la salida del integrado en el pin 2 donde debe haber una tensión de 4,6 volts. Si el lector tiene osciloscopio puede encontrar en este punto una señal en forma de escalera descendente con 2 V de amplitud pico-a-pico. Los componentes asociados a este problema que también deben ser verificados son los condensadores C233, C225, C705 y C706. Los resistores son R220, R701, R702, R710, R708.
El potenciómetro P701 y componentes asociados también deben ser eventualmente analizados, ya que es responsable del contraste. Recordamos nuevamente que la ausencia de tensión de + B en el paso es indicativo de problema con la fuente. Así, antes de cualquier análisis siempre vea si el sector de alimentación de la etapa sospechosa está funcionando bien.
En este defecto, por ejemplo, en que tenemos solamente la falta de imagen, pues el sonido es normal, se supone ya que la fuente está en buenas condiciones, pues de lo contrario no habría alimentación también para el sector de sonido que no podría funcionar.



